Accurate As-Built Floor Plans & Home Measurement Services
Serving homeowners, contractors, architects and insurance professionals.
Don’t have blueprints to your home for an upcoming renovation? no problem
Get precise, fast, and as-built floor plans —without the guesswork.
We provide precise measurement and as-built documentation using advanced LiDAR and 3D scanning technology. Whether you're planning a remodel, addition, or need accurate records of an existing structure, we capture every detail with speed and accuracy.
-

LiDAR Scanning
We use cutting-edge lidar scanners to capture your building’s dimensions in 3D. Get accurate as-built data for any project.
-

Floor Plan Models
Detailed, room-by-room floor plans with dimensions. Visualize your space with clarity and confidence.
-

CAD & BIM Files
Editable digital drawings (DWG, RVT, and more) of your space—ready to seamlessly integrate into your design and drafting workflow.
-

Square Footage Reports
Accurate square footage breakdowns for your property. Know exactly how much space you have in each room and floor.
We offer Accurate Measuring Solutions for
Every scenario
From planning and renovations to insurance documentation, we provide reliable measurement services tailored to homeowners, contractors, and real estate professionals. Most homes are fully scanned in about an hour.
-

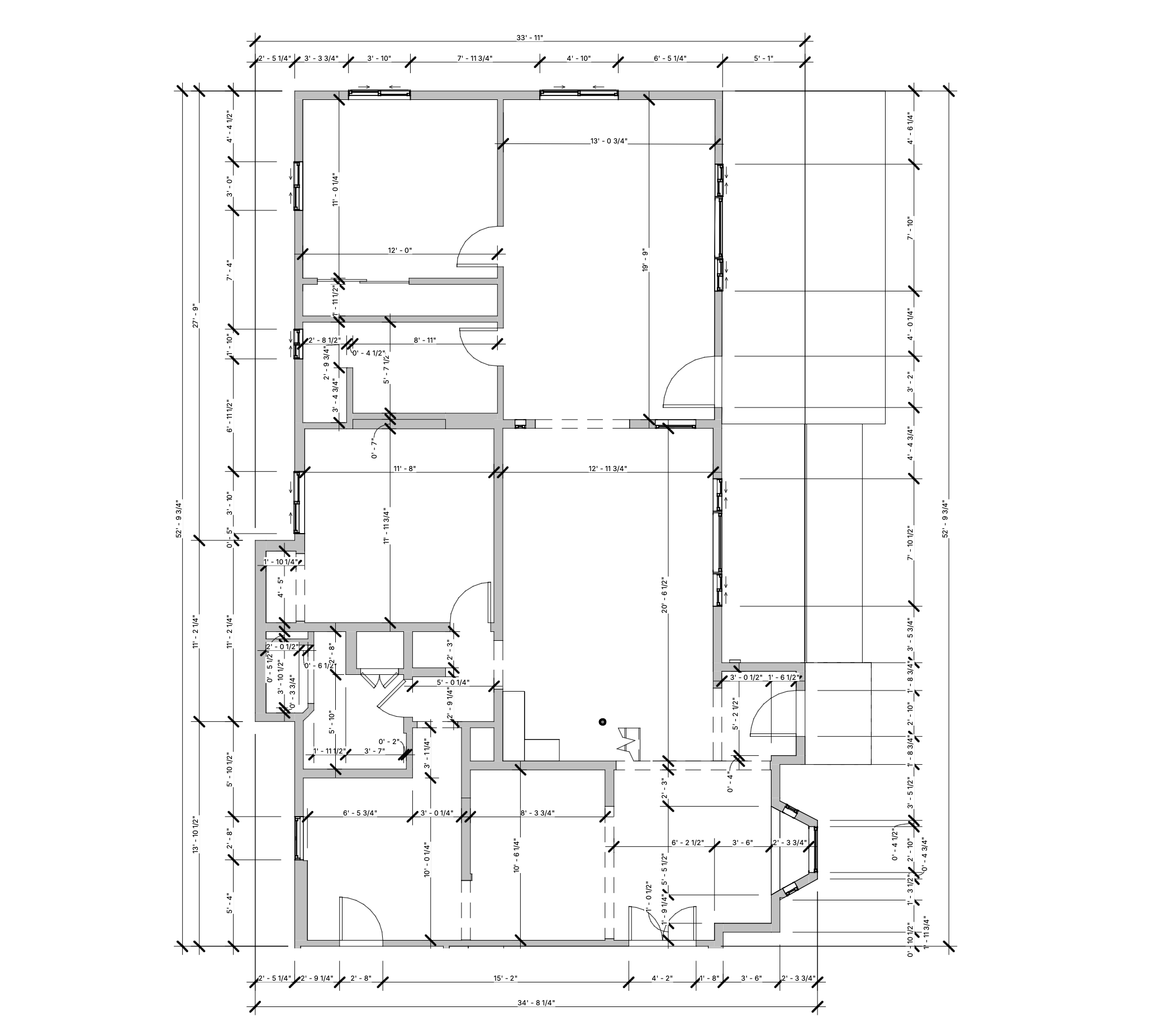
As-Built Floor Plans
Accurate floor plans of your existing home—perfect for remodels, additions, and contractor planning.
-

Insurance & Disaster Documentation
Fast, detailed documentation for fire, water, or storm damage—helping move your claim and rebuild forward.
-

Property Measurement Services
Precise square footage and measurements for real estate, appraisals, and project planning.
Who Uses Our Services?
We work with professionals and property owners across multiple industries.
Architects & Designers
Start your designs with confidence. We provide laser-accurate as-builts and CAD files ready for your workflow if you are an architect—saving you time and reducing site visits.
Builders & Contractors
Skip the measuring tape. Get detailed PDF plans and CAD files that make estimates easy, eliminate rework, and streamline remodels from day one.
Homeowners
Planning a renovation or addition? We give you the accurate floor plans and square footage you need to confidently communicate with your builder or designer.
Real Estate Agents
Impress your clients with stunning, accurate floor plans and square footage reports that boost listing appeal and build trust with buyers.
Insurance & Disaster As-Builts
When disaster strikes, having accurate documentation of your property is critical.
Areas We Cover
We proudly serve the Treasure Valley and surrounding areas, providing fast and reliable measuring services wherever you need us.
Meridian
Caldwell
Boise
Nampa
Eagle
Nearby surrounding areas
Frequently Asked Questions
-
Our LiDAR scanning technology captures highly accurate measurements of your property, providing dependable data for remodels, additions, and planning. As with any existing condition documentation, field verification is recommended prior to construction.
-
Most homes can be fully scanned in about an hour, with accurate plans delivered in just a few days—depending on the size and complexity of the property.
-
In most cases, it’s not required. As long as we have access to the property, our team can handle the scanning process efficiently.
Ready to Get Started?
Get accurate measurements and professional floor plans for your next project.